
Moderne 3-Zimmer-Erdgeschosswohnung mit Loggia, Keller, TG-Platz und eigenem Eingang in Toplage von Frankfurt Riedberg (Quartier Schöne Aussicht).
Zum Verkauf steht eine moderne und helle 3-Zimmer-Erdgeschosswohnung im beliebten Stadtteil Frankfurt-Riedberg. Die Immobilie befindet sich in einem im Jahr 2010 errichteten Wohnensemble mit prämierter Architektur und überzeugt durch den eigenen Eingang, ihre großzügige Wohnfläche von 103 m², die sehr gute Ausstattung ( z.B. 2,7 m lichte Raumhöhe, Malervlies, Eichenparkett, Schiebegardinen etc.) sowie eine schöne Loggia ("Vorplatz").
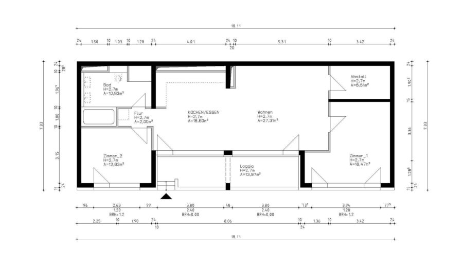
Der offen gestaltete Wohn- und Essbereich mit ca. 28 m², bildet das Herzstück der Wohnung. Die integrierte Marken-Einbauküche von Küchenwerk mit Quarzit-Arbeitsplatte und Boschgeräten fügt sich stilvoll in das Raumkonzept ein und erfüllt hohe Ansprüche an Funktionalität und Design. Große bodentiefe Fenster sorgen für eine helle, freundliche Atmosphäre und bieten direkten Zugang zur Loggia mit einer Gesamtfläche von ca. 13 m² (davon ca. 7 m² als Wfl. anrechenbar). Diese lädt zu entspannten Stunden im Freien ein und erweitert Ihren Wohnraum auf angenehme Weise.
Neben dem großzügigen Wohnbereich stehen 2 weitere gut geschnittene Zimmer (ca. 18 und ca. 13 m²) zur Verfügung, die sich flexibel als Schlaf-, Kinder- oder Arbeitszimmer nutzen lassen.
Das moderne Badezimmer ist mit einem kleinen Flur (ca. 2 m²) an ein Schlafzimmer und den Wohn-Essbereich angebunden und ist mit ca. 11 m² großzügig und hochwertig ausgestattet. Es verfügt sowohl über eine Badewanne als auch über eine Dusche.
Ein weiterer Pluspunkt ist die hervorragende Energieeffizienzklasse A. Die Beheizung erfolgt nachhaltig und kosteneffizient als modere Fußbodenheizung über Fernwärme.
Ein Abstellraum mit ca. 7 m² in der Wohnung, ein weiterer (ca. 10 m²) im Kellergeschoss und ein Stellplatz in der Tiefgarage, welcher für 25.000 € mit zu erwerben ist, machen diese Wohnung praktisch und rundum perfekt. An Gemeinschafträumen stehen ein Waschraum, ein Fahrradraum sowie ein Müllraum Zur Verfügung.
Diese Immobilie eignet sich ideal für Eigennutzer, die eine wertstabile Wohnung in einer der gefragtesten Wohnlagen Frankfurts erwerben möchten.
- Bestlage Riedberg Schöne Aussicht, nähe des Bonifatiusparks und der U-Bahn-Station Riedberg
- Baujahr 2010, Massivbauweise, renommierter Bauträger (Bien Ries, jetzt BUWOG), prämierte Architektur ("So what" - Atelier 5 aus Bern)
- Energie-Effizienzhaus 70 nach EnEV 2009, Energieklasse A, Fernwärme, Fußbodenheizung, zusätzlicher Handtuchheizkörper im Bad
- Begrünter Innenhof und Gemeinschaftsfläche mit Sitz- und Spielmöglichkeiten
- ca. 103 m² Wohnfläche
- 3 Zimmer Nr. 1.51, davon Wohnen/Essen mit ca. 28 m² und zwei Schlafzimmer mit ca. 18 / ca. 13 m²
- Ca. 11 m² großzügiges Badezimmer mit Badewanne und Dusche
- Abstellraum in der Wohnung ca. 7 m²
- Flur ca. 2 m² zum Bad/Schlafzimmer mit Stellfläche
- Eigener / privater Zugang zur Wohnung über die nach Süd-Ost ausgerichtete Loggia (ca. 13 m², d.h. ca. 7 m² Wfl.)
- Video-Gegensprechanlage
- Markeneinbauküche von Küchenwerk mit Quarzit-Arbeitsplatte und Einbaugeräten von Bosch
- Malervlies
- Fast Deckenhohe Innentüren in weiß-lackiertem Holz
- 3 fach-verglaste-Fenster und Türen (Sonnenschutzverglasung), Schiebegardinen
- Telefon-TV-Anschlüsse in allen Wohn-/Schlafräumen
- Hochwertiger Parkettboden (Eiche) in den Wohn- und Schlafzimmern, der Küche und dem Abstellraum
- Feinsteinzeugfliesen im Badezimmer
- Zusätzliches Kellerabteil Nr. 1.51 im Haus (Aufzug) mit ca. 10 m²
- Gemeinschaftsräume: Mehrere Fahrradabstellräume und Wasch- und Trockenraum (Waschmaschinenanschluss auch in der Wohnung)
- 1 TG-Stellplatz Nr. 24 ist für 25.000 € mit zu erwerben
Haben wir Ihr Interesse geweckt? Dann füllen Sie bitte am besten das Kontaktformular vollständig aus (Name, Adresse, Kontaktdaten usw.) und teilen uns Ihre Frage bzw. Ihren Besichtigungswunsch und auch gerne den bevorzugten Kommunikationsweg mit. Wir melden uns kurzfristig. Sie können uns auch gerne anderweitig kontaktieren. Vor einer Besichtigung bitten wir jedoch um das vollständige Ausfüllen des Kontaktformulars. Dies erleichtert die Bearbeitung durch unsere EDV und die Kommunikation mit Ihnen und die Berichtspflicht gegenüber unserm Auftraggeber, dem Eigentümer.
Wollen Sie selbst verkaufen? Gerne können Sie uns ansprechen und wir schätzen professionell und für Sie kostenfrei den Marktwert Ihrer Immobilie. Auf Wunsch entwerfen wir auch Ihre Vermarktungsstrategie für Ihre Wohnung, Ihr Haus oder Ihr Grundstück.
Maklervertrag, Widerrufsrecht und Auszug aus den allgemeinen Geschäftsbedingungen für Kaufinteressenten:
Die Firma Riedberg Immobilien eK unterstützt und berät in dieser Verkaufssache den Eigentümer exklusiv (qualifizierter Alleinauftrag). Sämtliche Anfragen, Besichtigungen und Verhandlungen zur angebotenen Immobilie laufen auf Wunsch der Verkäuferseite zunächst nur über uns. Unsere Vergütung erfolgt in Höhe von 2,95% inkl. MwSt. aus dem Kaufpreis durch die Käuferseite an uns, fällig mit rechtswirksamen, notariellen Kaufvertragsabschluss. Die Verkäuferseite zahlt die gleiche Maklercourtage. Mithin beträgt die Gesamtprovision 5,9% inkl. MwSt. und wird 50:50 zwischen Käufer und Verkäufer aufgeteilt (jeweils separate Maklerverträge). Bitte beachten Sie Ihr gesetzlich vorgesehenes Widerrufsrecht zum Abschluss eines Maklervertrags mit uns. Entscheiden Sie sich gegen den Kauf der angebotenen Immobilie, fallen selbstverständlich keine Maklerkosten für Sie an (Erfolgsabhängigkeit unserer Tätigkeit). Da wir für beide Parteien als Makler tätig sind und von diesen honoriert werden, sind wir bei Vermittlungsleistungen zur Unparteilichkeit verpflichtet. Wir agieren als neutraler Vermittler.
Alle Angaben zur Immobilie stammen von der Verkäuferseite bzw. deren Baupartnern, wie Bauträger, Architekten, Handwerkern etc. und sind von uns nach bestem Wissen und Gewissen übernommen. Eine Haftung für solche Informationen erfolgt durch uns nicht. Der Käufer soll daher bitte alle für ihn wichtigen Punkte selbst prüfen bzw. uns einen gesonderten, ausdrücklichen Auftrag dazu erteilen und ggf. in den allein maßgeblichen Kaufvertrag mit dem Verkäufer aufnehmen lassen. Für eigene Fehler haften wir nur bei Vorsatz oder grober Fahrlässigkeit, soweit gesetzlich zulässig.
Alle unsere Angebote und Informationen sind unser "Geschäftskapital" und folglich ausschließlich für Sie als unseren Auftraggeber persönlich bestimmt und müssen vertraulich behandelt werden. Eine Weitergabe, insbesondere unserer Exposés mit der Adresse an Dritte, auch beratende Personen, ist nur mit unserer schriftlichen Zustimmung gestattet. Die unbefugte und schuldhafte Weitergabe durch Sie als Kaufinteressent verpflichtet Sie zur Zahlung der o.g. Provision, wenn der Dritte die Ihnen angebotene Vertragsabschlussgelegenheit erwirbt, d.h. diese Informationen zu unseren Lasten ausnutzt. Zusätzlich können Schadensersatzansprüche von uns an Sie entstehen im Hinblick auf die ggf. ebenso entgangene Verkäuferprovision. Das Angebot ist für uns freibleibend, der Zwischenverkauf bleibt dem Eigentümer stets vorbehalten.
Anbietender Makler:
Riedberg Immobilien eK
Inhaber: Mirjana Tannek
Rudolf Schwarz Platz 1, 60438 Frankfurt am Main
Tel. 069 - 348 68 42 40
Verkaufsberatung:
Tuba Sener
0174 - 56 88 567, sener@riedberg.immo
Anton T. Hartl
0172 - 855 77 05, hartl@riedberg.immo
Eingetragen im Handelsregister beim AG Frankfurt unter Nr. HR A 48 505
Gewerbeaufsicht: Ordnungsamt der Stadt Frankfurt am Main
Zulassung nach § 34c GewO: Landratsamt Dachau bzw. Kreisverwaltung Darmstadt-Dieburg
Der Stadtteil Riedberg gehört zu den jüngeren und modernsten Stadtteilen im Frankfurter Norden und zeichnet sich durch gehobene Wohnqualität, eine exzellente familienfreundliche Infrastruktur und eine enge Verbindung zur Natur aus.
Die Lage bietet eine hervorragende Anbindung an den öffentlichen Nahverkehr mit einer U-Bahnstation und zwei Linien (U8, U9) in nur 500 m Entfernung. Einkaufsmöglichkeiten für den täglichen Bedarf, wie ein Supermarkt, befinden sich rund 600 m entfernt, und das nahegelegene Riedberg Zentrum (1,2 km) bieten eine abwechslungsreiche Auswahl an Geschäften und Gastronomie. Familien profitieren von mehreren Kindergärten und Schulen innerhalb eines Radius von ca. 1 km, darunter das renommierte Riedberggymnasium. Auch die privaten Schulen in Bad Homburg, Oberursel oder Bad Vilbel sind unweit entfernt.
Erholungssuchende genießen die grünen Freiflächen des Riedbergparks, der sich etwa 700 m entfernt befindet und zu Spaziergängen oder sportlichen Aktivitäten einlädt. Die Goethe-Universität Frankfurt (Campus Riedberg) liegt in einer Entfernung von 1,5 km und bietet ein lebendiges Umfeld. Über die nahegelegenen Autobahnanschlüsse A661 und A5 ist die Innenstadt von Frankfurt in ca. 15 Minuten mit dem Auto erreichbar. Den Flughafen erreicht man in ca. 20 Autominuten.
Die Umgebung verbindet urbanes Wohnen mit einer entspannten und naturnahen Atmosphäre. Ideal für Familien, Berufstätige und alle, die modernes Leben mit guter Infrastruktur schätzen.
Die ungefähre Position der Immobilie auf Google Maps ansehen (Link auf externe Website)
