
Willkommen in einem Zuhause, das mehr ist als nur vier Wände.
Diese barrierefreie 2-Zimmer-Wohnung mit ca. 79 m² vereint modernen Wohnkomfort mit einem Gefühl von Geborgenheit, das man sofort spürt, sobald man eintritt. In der zentral gelegenen Rhein-Main-Residenz am Frankfurter Riedberg erwartet Sie ein durchdachtes Wohnkonzept für Menschen, die Wert auf Qualität, Sicherheit und ein angenehmes Miteinander (Ü50) legen. Errichtet 2011 von der renommierten MBN Bau GmbH als KfW-70-Haus, überzeugt die Immobilie mit nachhaltiger Bauweise und zeitgemäßer Ausstattung: Fußbodenheizung, Fernwärme sowie dreifach verglaste Fenster mit elektrischen Rollläden sorgen für ein rundum komfortables Wohnklima.
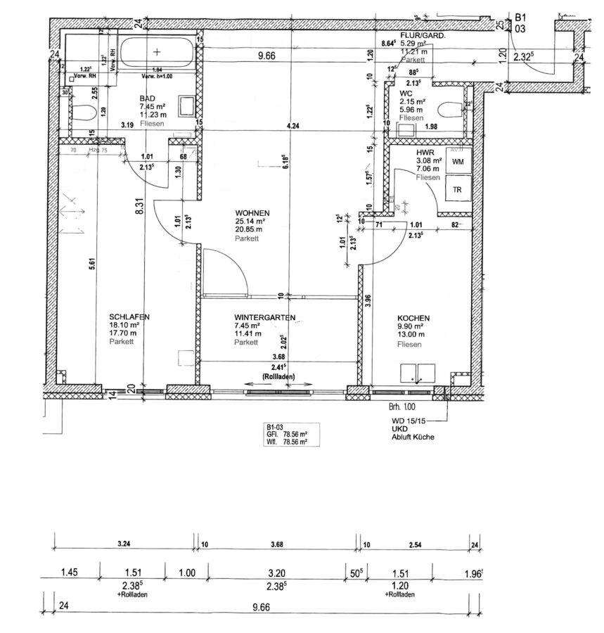
Bereits der Eingangsbereich heißt Sie freundlich willkommen und bietet mit einer praktischen Garderobennische einen gelungenen ersten Eindruck. Von hier aus öffnet sich das Herzstück der Wohnung: der großzügige Wohn- und Essbereich. Der angrenzende Wintergarten durchflutet den Raum mit Licht und schafft eine besondere Atmosphäre – ein Lieblingsplatz, an dem Sie die Jahreszeiten hautnah erleben und entspannte Stunden genießen können.
Die Küche ist funktional angebunden und bietet mit dem direkten Zugang zum Hauswirtschaftsraum kurze Wege und zusätzlichen Komfort im Alltag. Das Schlafzimmer präsentiert sich als ruhiger Rückzugsort, während das stilvolle en-Suite-Badezimmer mit ebenerdiger Dusche, hochwertigen Fliesen und modernen Details Ihre persönliche Wellnesszone bildet.
Ein zusätzlicher Abstellraum im Erdgeschoss schafft wertvollen Stauraum, und Ihr Fahrzeug ist auf dem eigenen Tiefgaragenstellplatz (zzgl. 19.500 €) sicher und bequem untergebracht.
Eine Investition, die sich doppelt lohnt – heute als Kapitalanlage, morgen vielleicht Ihr eigenes Zuhause.
- Baujahr 2011 in Massivbauweise, Keller aus WU-Beton, durch renommierten Bauträger (MBN-Gruppe) errichtet
- KfW 70 Effizienzhaus, Fernwärme als Energieträger, moderne Fußbodenheizung (Energieklasse B)
- Senioren- und behindertengerechtes Wohnen möglich
- Barrierefrei, stufenlos und rollstuhlgeeignet
- Im Zentrum des Riedbergs, d.h. alles fußläufig erreichbar
- Knappe 79 m² Wohnfläche
- 2 große und helle Zimmer mit bodentiefen Fenstern: Wohnzimmer (ca. 25 m²) mit Wintergarten bzw. Essbereich en suite (ca. 7 m²), Schlafzimmer (ca. 18 m²)
- Großes Badezimmer mit Wanne und bodengleicher XL-Dusche en suite (zum Schlafzimmer; ca. 8 m²)
- Gäste-WC mit ca. 2 m²
- Abgetrennte Küche mit ca. 10 m²
- Praktischer Hauswirtschafts- bzw. Abstellraum mit ca. 3 m² en suite zur Küche
- Malervlies
- Schönes Eichenparkett in den Wohn- und Schlafräumen, im Wintergarten (ggf. Essbereich) sowie im Flur
- Feinsteinzeugfliesen im Bad, Gäste-WC und Küche
- Breite, weiße Zimmertüren
- Einbruchshemmende abschließbare Fenster mit Schallschutzklasse 3 und Widerstandsklasse WK2
- Elektrische Rollläden
- Wohnungseingangstüre, einbruchshemmend WK2 und Schallschutzklasse 3, mit Mehrfachverriegelung und Türspion
- Videogegensprechanlage
- Gästezimmer in der Rhein-Main-Residenz für Ihre Besucher günstig zu buchbar
- Weitere großzügige Gemeinschaftsräume wie Kaminzimmer, Bibliothek, Wellnessbereich mit Sauna, Ruhezone und Fitnessgeräten sowie eine Außenanlage mit großer Terrasse und Gartenlauben stehen zur Verfügung
- Weiterer Abstellraum im EG (d.h. eigener "Kellerraum")
- Tiefgaragenstellplatz ist für 19.500 € dazu zu erwerben
Haben wir Ihr Interesse geweckt? Dann füllen Sie bitte am besten das Kontaktformular vollständig aus (Name, Adresse, Kontaktdaten usw.) und teilen uns Ihre Frage bzw. Ihren Besichtigungswunsch und auch gerne den bevorzugten Kommunikationsweg mit. Wir melden uns kurzfristig.
Sie können uns auch gerne anderweitig kontaktieren. Vor einer Besichtigung bitten wir jedoch um das vollständige Ausfüllen des Kontaktformulars. Dies erleichtert die Bearbeitung durch unsere EDV und die Kommunikation mit Ihnen und die Berichtspflicht gegenüber unserem weiteren Auftraggeber, dem Eigentümer.
Wollen Sie selbst verkaufen? Gerne können Sie uns ansprechen und wir schätzen professionell und für Sie kostenfrei den Marktwert Ihrer Immobilie. Auf Wunsch entwerfen wir auch eine Vermarktungsstrategie für Ihre Wohnung, Ihr Haus oder Ihr Grundstück.
Maklervertrag, Widerrufsrecht und Auszug aus den allgemeinen Geschäftsbedingungen für Kaufinteressenten:
Die Firma Riedberg Immobilien eK unterstützt und berät in dieser Verkaufssache den Eigentümer exklusiv (qualifizierter Alleinauftrag). Sämtliche Anfragen, Besichtigungen und Verhandlungen zur angebotenen Immobilie laufen auf Wunsch der Verkäuferseite zunächst über uns. Unsere Vergütung erfolgt in Höhe von 2,95% inkl. MwSt. aus dem Kaufpreis durch die Käuferseite an uns, fällig mit rechtswirksamen, notariellen Kaufvertragsabschluss. Die Verkäuferseite zahlt die gleiche Maklercourtage an uns. Mithin beträgt die Gesamtprovision 5,9% inkl. MwSt. und wird 50:50 zwischen Käufer und Verkäufer aufgeteilt (jeweils separate Maklerverträge). Bitte beachten Sie Ihr gesetzlich vorgesehenes Widerrufsrecht zum Abschluss eines Maklervertrags mit uns. Entscheiden Sie sich gegen den Kauf der angebotenen Immobilie, fallen selbstverständlich keine Maklerkosten für Sie an (Erfolgsabhängigkeit unserer Tätigkeit). Da wir für beide Parteien als Makler tätig sind und von diesen honoriert werden, sind wir bei Vermittlungsleistungen zur Unparteilichkeit verpflichtet. Wir agieren als neutraler Vermittler.
Alle Angaben zur Immobilie stammen von der Verkäuferseite bzw. deren Baupartnern, wie Bauträger, Architekten, Handwerkern etc. und sind von uns nach bestem Wissen und Gewissen übernommen. Eine Haftung für solche Informationen erfolgt durch uns nicht. Der Käufer soll daher bitte alle für ihn wichtigen Punkte selbst prüfen bzw. uns einen gesonderten, ausdrücklichen Auftrag dazu erteilen und ggf. in den allein maßgeblichen Kaufvertrag mit dem Verkäufer aufnehmen lassen. Für eigene Fehler haften wir nur bei Vorsatz oder grober Fahrlässigkeit, soweit gesetzlich zulässig.
Alle unsere Angebote und Informationen sind unser "Geschäftskapital" und folglich ausschließlich für Sie als unseren Auftraggeber persönlich bestimmt und müssen vertraulich behandelt werden. Eine Weitergabe, insbesondere unserer Exposés mit der Adresse an Dritte, auch beratende Personen, ist nur mit unserer schriftlichen Zustimmung gestattet. Die unbefugte und schuldhafte Weitergabe durch Sie als Kaufinteressent verpflichtet Sie zur Zahlung der o.g. Provision, wenn der Dritte die Ihnen angebotene Vertragsabschlussgelegenheit erwirbt, d.h. diese Informationen zu unseren Lasten ausnutzt. Weiter können Schadensersatzansprüche von uns an Sie entstehen im Hinblick auf die ggf. ebenso entgangene Verkäuferprovision. Das Angebot ist für uns freibleibend, der Zwischenverkauf bleibt dem Eigentümer stets vorbehalten.
Anbietender Makler:
Riedberg Immobilien eK
Inhaber: Mirjana Tannek
Rudolf Schwarz Platz 1, 60438 Frankfurt am Main
Tel. 069 - 348 68 42 40
Verkaufsberatung:
Tuba Sener
0174 - 56 88 567, sener@riedberg.immo
Anton T. Hartl
0172 - 855 77 05, hartl@riedberg.immo
Eingetragen im Handelsregister beim AG Frankfurt unter Nr. HR A 48 505
Gewerbeaufsicht: Ordnungsamt der Stadt Frankfurt am Main
Zulassung nach § 34c GewO: Landratsamt Dachau bzw. Kreisverwaltung Darmstadt-Dieburg
Die Wohnung liegt im Quartier Riedberg-Mitte – zentral und in einem angenehm wohnlichen Umfeld. Die Nachbarschaft zeichnet sich durch eine gelungene Mischung aus Geschosswohnungsbau mit vollständiger Infrastruktur des täglichen Bedarfs sowie modernen Reihen- und Doppelhäusern aus. Direkt neben der Rhein-Main-Residenz befindet sich der Bettinahof der Casa Reha, ein Betreuungs- und Pflegeheim. Gemeinsam bilden beide Einrichtungen ein durchdachtes, ganzheitliches Konzept: Sollte ein Bewohner der Rhein-Main-Residenz einmal pflegebedürftig werden, kann er im vertrauten Umfeld bleiben – ohne den gewohnten Lebensmittelpunkt verlassen zu müssen. Auch für Ehepaare bietet dies große Sicherheit: Beide Partner können weiterhin in unmittelbarer räumlicher Nähe zusammenleben, selbst wenn einer von ihnen intensivere Pflege benötigt.
Genießen Sie die Vorzüge des Riedbergs – leben Sie zentral und doch im Grünen. Hier wohnen Sie zentral und sind zugleich von grünen Oasen umgeben: Der Grünzug Topographischer Weg schließt direkt an das Quartier an, und der rund 10 Hektar große Stadtpark liegt nur wenige Schritte entfernt. Ob für entspannte Spaziergänge, sportliche Aktivitäten oder ruhige Momente an der frischen Luft – hier finden Sie jederzeit Erholung vor der eigenen Haustür.
Direkt gegenüber Ihrer Wohnung erwartet Sie das Riedberg-Zentrum mit einer großen Auswahl an Einkaufsmöglichkeiten, Ärzten, Apotheken, Banken, Cafés und Restaurants. Neben REWE, Aldi, Lidl, Edeka und DM bietet der samstägliche Wochenmarkt auf dem Riedbergplatz frische Produkte von regionalen Anbietern – ein Ort zum Verweilen und Genießen. Auch im Haus selbst gibt es die die Sparda-Bank, die DEVK Versicherung, eine Bäckerei mit Café, einen Frisör, ein Nagelstudio und ein Spracheninstitut.
Die Verkehrsanbindung ist hervorragend: Mit den U-Bahn-Linien 8 und 9 sowie den Buslinien 29 und 251 erreichen Sie das Nordwestzentrum in ca. 7 Minuten und die Frankfurter Hauptwache in nur ca. 19 Minuten. Die Haltestelle Riedberg Uni Campus liegt fußläufig nur ca. 3 Minuten entfernt. Über die A661 und die A5 sind Sie zudem optimal an das Straßennetz angebunden – und den Flughafen Frankfurt erreichen Sie bequem in etwa 20 Autominuten.
Der Riedberg ist ein Stadtteil für alle Generationen. Zahlreiche moderne Kitas, Grundschulen – darunter eine mit eigener Schwimmhalle – sowie das Riedberg-Gymnasium direkt gegenüber Ihrer Wohnung bieten Ihren Kindern und Enkeln beste Entwicklungsmöglichkeiten. Auch renommierte internationale Schulen in Oberursel, Bad Homburg und Bad Vilbel sind schnell erreichbar.
Mit den naturwissenschaftlichen Fakultäten der Goethe-Universität, zwei Max-Planck-Instituten, dem FIAS sowie dem Forschungs- und Innovationszentrum für Biotechnologie hat sich der Riedberg zu einem dynamischen Wissenschaftsstandort entwickelt. Das schafft ein modernes, weltoffenes Umfeld – mit zahlreichen kulturellen und wissenschaftlichen Angeboten, die auch für Seniorinnen und Senioren zugänglich sind.
Ein aktiver Sportverein mit über 1.600 Mitgliedern sowie weitere Kultur- und Bürgervereine laden zum Mitmachen ein und sorgen für schnellen Anschluss. Zwei Kirchengemeinden, vielfältige Freizeitangebote, ein Reiterhof und der nahegelegene Golfplatz jeweils mit sehr guter Gastronomie runden das lebendige Umfeld ab.
Die ungefähre Position der Immobilie auf Google Maps ansehen (Link auf externe Website)
