
Betreten Sie Ihr neues Zuhause, das Wärme, Komfort und Sicherheit ausstrahlt. Diese barrierefreie 2-Zimmer-Wohnung mit ca. 79 m² Wohnfläche ist ein Ort, an dem Sie sofort ankommen und sich wohlfühlen. Sie liegt in der zentralen Rhein-Main-Residenz von Frankfurt-Riedberg, einem lebendigen Ensemble für Menschen ab 50 Jahren, das 2011 von der renommierten MBN Bau GmbH als KfW-70-Haus erbaut wurde. Moderne Ausstattung wie Fußbodenheizung, Fernwärme und dreifach verglaste Fenster mit elektrischen Rollläden verbinden hier stilvolles Wohnen mit nachhaltiger Qualität. Schon beim Betreten empfängt Sie ein freundlicher Flur mit praktischer Garderobennische. Von hier aus öffnet sich der großzügige Wohn- und Essbereich, der mit seinem lichtdurchfluteten Wintergarten eine besonders behagliche Wohnatmosphäre schafft – ein Platz, an dem Sie jede Jahreszeit in vollen Zügen genießen können. Die angrenzende Küche mit direktem Zugang zum Hauswirtschaftsraum macht den Alltag leicht und funktional. Das Schlafzimmer bietet Ruhe und Geborgenheit, während das en suite gelegene Badezimmer mit edlen Fliesen, ebenerdiger Dusche und stilvollen Details zu einem persönlichen Rückzugsort wird. Ein heller Abstellraum im Erdgeschoss sorgt für zusätzlichen Stauraum, und für Ihr Auto steht ein Tiefgaragenstellplatz bereit, der für 19.500 € erworben werden kann.
Auch die Lage wird Sie begeistern: Direkt im Haus finden Sie eine Bäckerei mit Café, Bank, Versicherungen und weitere Dienstleister, während das Riedberg-Zentrum gegenüber mit Supermärkten, Drogerie, Apotheke, Ärzten, Restaurants und Cafés keine Wünsche offenlässt. Alles, was Sie für den täglichen Bedarf und kleine Genussmomente brauchen, liegt sprichwörtlich vor Ihrer Tür. In nur drei Gehminuten erreichen Sie U-Bahn und Bus, die Sie schnell in die Innenstadt, ins Nordwestzentrum oder die umliegenden Stadtteile bringen – so genießen Sie die perfekte Verbindung von Ruhe und Stadtnähe.
Diese Wohnung ist weit mehr als nur vier Wände – sie ist ein Zuhause, das Ihnen Lebensqualität schenkt, ein Ort zum Ankommen, Wohlfühlen und Bleiben. Ob als Ihr persönliches Refugium oder als wertbeständige Kapitalanlage: Hier finden Sie die ideale Verbindung von Wohnkomfort, Lage und Zukunftssicherheit.
- Baujahr 2011 in Massivbauweise, Keller aus WU-Beton, durch renommierten Bauträger (MBN-Gruppe) errichtet
- KfW 70 Effizienzhaus, Fernwärme als Energieträger, moderne Fußbodenheizung (Energieklasse B)
- Senioren- und behindertengerechtes Wohnen möglich
- Barrierefrei, stufenlos und rollstuhlgeeignet
- Im Zentrum des Riedbergs, d.h. alles fußläufig erreichbar
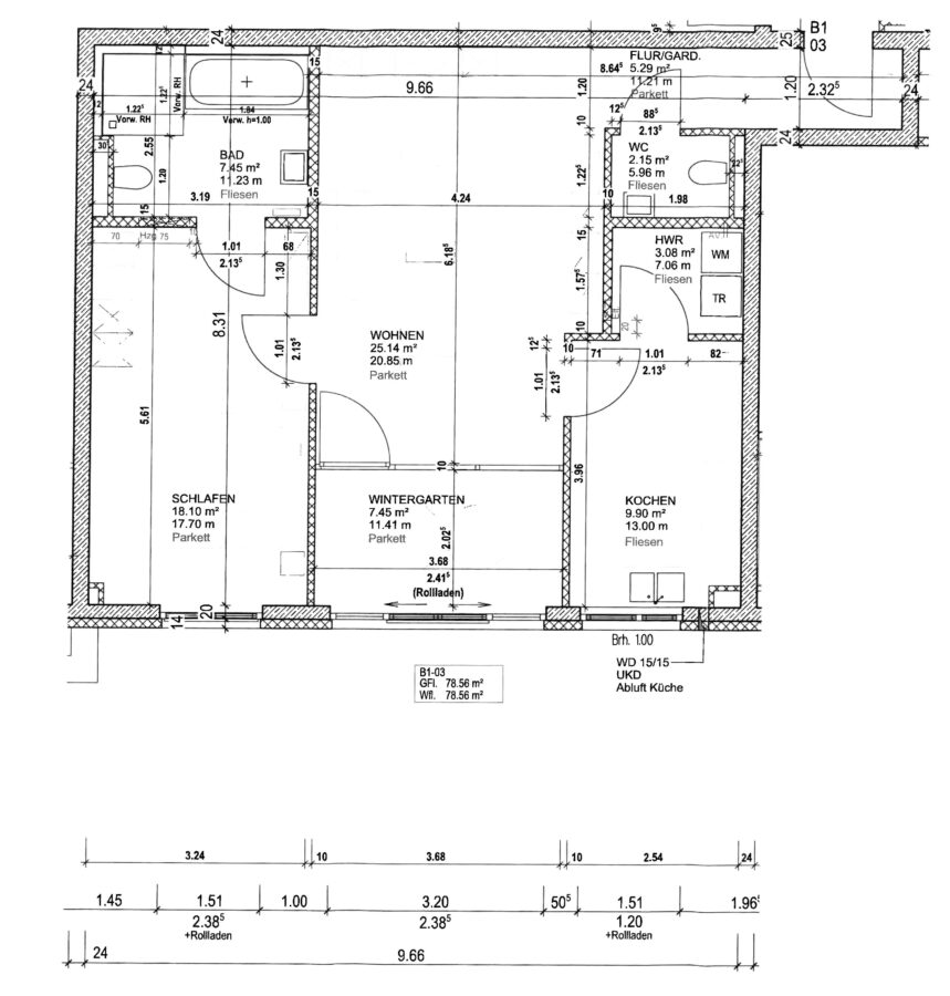
- Knappe 79 m² Wohnfläche
- 2 große und helle Zimmer mit bodentiefen Fenstern: Wohnzimmer (ca. 25 m²) mit Wintergarten bzw. Essbereich en suite (ca. 7 m²), Schlafzimmer (ca. 18 m²)
- Großes Badezimmer mit Wanne und bodengleicher XL-Dusche en suite (zum Schlafzimmer; ca. 8 m²)
- Gäste-WC mit ca. 2 m²
- Abgetrennte Küche mit ca. 10 m²
- Praktischer Hauswirtschafts- bzw. Abstellraum mit ca. 3 m² en suite zur Küche
- Malervlies
- Schönes Eichenparkett in den Wohn- und Schlafräumen, im Wintergarten (ggf. Essbereich) sowie im Flur
- Feinsteinzeugfliesen im Bad, Gäste-WC und Küche
- Breite, weiße Zimmertüren
- Einbruchshemmende abschließbare Fenster mit Schallschutzklasse 3 und Widerstandsklasse WK2
- Elektrische Rollläden
- Wohnungseingangstüre, einbruchshemmend WK2 und Schallschutzklasse 3, mit Mehrfachverriegelung und Türspion
- Videogegensprechanlage
- Gästezimmer in der Rhein-Main-Residenz für Ihre Besucher günstig zu buchbar
- Weitere großzügige Gemeinschaftsräume wie Kaminzimmer, Bibliothek, Wellnessbereich mit Sauna, Ruhezone und Fitnessgeräten sowie eine Außenanlage mit großer Terrasse und Gartenlauben stehen zur Verfügung
- Weiterer Abstellraum im EG (d.h. eigener "Kellerraum")
- Tiefgaragenstellplatz ist für 19.500 € dazu zu erwerben
Haben wir Ihr Interesse geweckt? Dann füllen Sie bitte am besten das Kontaktformular vollständig aus (Name, Adresse, Kontaktdaten usw.) und teilen uns Ihre Frage bzw. Ihren Besichtigungswunsch und auch gerne den bevorzugten Kommunikationsweg mit. Wir melden uns kurzfristig.
Sie können uns auch gerne anderweitig kontaktieren. Vor einer Besichtigung bitten wir jedoch um das vollständige Ausfüllen des Kontaktformulars. Dies erleichtert die Bearbeitung durch unsere EDV und die Kommunikation mit Ihnen und die Berichtspflicht gegenüber unserem weiteren Auftraggeber, dem Eigentümer.
Wollen Sie selbst verkaufen? Gerne können Sie uns ansprechen und wir schätzen professionell und für Sie kostenfrei den Marktwert Ihrer Immobilie. Auf Wunsch entwerfen wir auch eine Vermarktungsstrategie für Ihre Wohnung, Ihr Haus oder Ihr Grundstück.
Maklervertrag, Widerrufsrecht und Auszug aus den allgemeinen Geschäftsbedingungen für Kaufinteressenten:
Die Firma Riedberg Immobilien eK unterstützt und berät in dieser Verkaufssache den Eigentümer exklusiv (qualifizierter Alleinauftrag). Sämtliche Anfragen, Besichtigungen und Verhandlungen zur angebotenen Immobilie laufen auf Wunsch der Verkäuferseite zunächst über uns. Unsere Vergütung erfolgt in Höhe von 2,95% inkl. MwSt. aus dem Kaufpreis durch die Käuferseite an uns, fällig mit rechtswirksamen, notariellen Kaufvertragsabschluss. Die Verkäuferseite zahlt die gleiche Maklercourtage an uns. Mithin beträgt die Gesamtprovision 5,9% inkl. MwSt. und wird 50:50 zwischen Käufer und Verkäufer aufgeteilt (jeweils separate Maklerverträge). Bitte beachten Sie Ihr gesetzlich vorgesehenes Widerrufsrecht zum Abschluss eines Maklervertrags mit uns. Entscheiden Sie sich gegen den Kauf der angebotenen Immobilie, fallen selbstverständlich keine Maklerkosten für Sie an (Erfolgsabhängigkeit unserer Tätigkeit). Da wir für beide Parteien als Makler tätig sind und von diesen honoriert werden, sind wir bei Vermittlungsleistungen zur Unparteilichkeit verpflichtet. Wir agieren als neutraler Vermittler.
Alle Angaben zur Immobilie stammen von der Verkäuferseite bzw. deren Baupartnern, wie Bauträger, Architekten, Handwerkern etc. und sind von uns nach bestem Wissen und Gewissen übernommen. Eine Haftung für solche Informationen erfolgt durch uns nicht. Der Käufer soll daher bitte alle für ihn wichtigen Punkte selbst prüfen bzw. uns einen gesonderten, ausdrücklichen Auftrag dazu erteilen und ggf. in den allein maßgeblichen Kaufvertrag mit dem Verkäufer aufnehmen lassen. Für eigene Fehler haften wir nur bei Vorsatz oder grober Fahrlässigkeit, soweit gesetzlich zulässig.
Alle unsere Angebote und Informationen sind unser "Geschäftskapital" und folglich ausschließlich für Sie als unseren Auftraggeber persönlich bestimmt und müssen vertraulich behandelt werden. Eine Weitergabe, insbesondere unserer Exposés mit der Adresse an Dritte, auch beratende Personen, ist nur mit unserer schriftlichen Zustimmung gestattet. Die unbefugte und schuldhafte Weitergabe durch Sie als Kaufinteressent verpflichtet Sie zur Zahlung der o.g. Provision, wenn der Dritte die Ihnen angebotene Vertragsabschlussgelegenheit erwirbt, d.h. diese Informationen zu unseren Lasten ausnutzt. Weiter können Schadensersatzansprüche von uns an Sie entstehen im Hinblick auf die ggf. ebenso entgangene Verkäuferprovision. Das Angebot ist für uns freibleibend, der Zwischenverkauf bleibt dem Eigentümer stets vorbehalten.
Anbietender Makler:
Riedberg Immobilien eK
Inhaber: Mirjana Tannek
Rudolf Schwarz Platz 1, 60438 Frankfurt am Main
Tel. 069 - 348 68 42 40
Verkaufsberatung:
Thi Nuyen
0151 - 12 35 88 99
nguyen@riedberg.immo
Anton T. Hartl
0172 - 855 77 05
hartl@riedberg.immo
Eingetragen im Handelsregister beim AG Frankfurt unter Nr. HR A 48 505
Gewerbeaufsicht: Ordnungsamt der Stadt Frankfurt am Main
Zulassung nach § 34c GewO: Landratsamt Dachau bzw. Stadt Frankfurt am Main
Die Wohnung liegt im Quartier Riedberg-Mitte – zentral und in einem angenehm wohnlichen Umfeld. Die Nachbarschaft zeichnet sich durch eine gelungene Mischung aus Geschosswohnungsbau mit vollständiger Infrastruktur des täglichen Bedarfs sowie modernen Reihen- und Doppelhäusern aus. Direkt neben der Rhein-Main-Residenz befindet sich der Bettinahof der Casa Reha, ein Betreuungs- und Pflegeheim. Gemeinsam bilden beide Einrichtungen ein durchdachtes, ganzheitliches Konzept: Sollte ein Bewohner der Rhein-Main-Residenz einmal pflegebedürftig werden, kann er im vertrauten Umfeld bleiben – ohne den gewohnten Lebensmittelpunkt verlassen zu müssen. Auch für Ehepaare bietet dies große Sicherheit: Beide Partner können weiterhin in unmittelbarer räumlicher Nähe zusammenleben, selbst wenn einer von ihnen intensivere Pflege benötigt.
Genießen Sie die Vorzüge des Riedbergs – leben Sie zentral und doch im Grünen. Hier wohnen Sie zentral und sind zugleich von grünen Oasen umgeben: Der Grünzug Topographischer Weg schließt direkt an das Quartier an, und der rund 10 Hektar große Stadtpark liegt nur wenige Schritte entfernt. Ob für entspannte Spaziergänge, sportliche Aktivitäten oder ruhige Momente an der frischen Luft – hier finden Sie jederzeit Erholung vor der eigenen Haustür.
Direkt gegenüber Ihrer Wohnung erwartet Sie das Riedberg-Zentrum mit einer großen Auswahl an Einkaufsmöglichkeiten, Ärzten, Apotheken, Banken, Cafés und Restaurants. Neben REWE, Aldi, Lidl, Edeka und DM bietet der samstägliche Wochenmarkt auf dem Riedbergplatz frische Produkte von regionalen Anbietern – ein Ort zum Verweilen und Genießen. Auch im Haus selbst gibt es die die Sparda-Bank, die DEVK Versicherung, eine Bäckerei mit Café, einen Frisör, ein Nagelstudio und ein Spracheninstitut.
Die Verkehrsanbindung ist hervorragend: Mit den U-Bahn-Linien 8 und 9 sowie den Buslinien 29 und 251 erreichen Sie das Nordwestzentrum in ca. 7 Minuten und die Frankfurter Hauptwache in nur ca. 19 Minuten. Die Haltestelle Riedberg Uni Campus liegt fußläufig nur ca. 3 Minuten entfernt. Über die A661 und die A5 sind Sie zudem optimal an das Straßennetz angebunden – und den Flughafen Frankfurt erreichen Sie bequem in etwa 20 Autominuten.
Der Riedberg ist ein Stadtteil für alle Generationen. Zahlreiche moderne Kitas, Grundschulen – darunter eine mit eigener Schwimmhalle – sowie das Riedberg-Gymnasium direkt gegenüber Ihrer Wohnung bieten Ihren Kindern und Enkeln beste Entwicklungsmöglichkeiten. Auch renommierte internationale Schulen in Oberursel, Bad Homburg und Bad Vilbel sind schnell erreichbar.
Mit den naturwissenschaftlichen Fakultäten der Goethe-Universität, zwei Max-Planck-Instituten, dem FIAS sowie dem Forschungs- und Innovationszentrum für Biotechnologie hat sich der Riedberg zu einem dynamischen Wissenschaftsstandort entwickelt. Das schafft ein modernes, weltoffenes Umfeld – mit zahlreichen kulturellen und wissenschaftlichen Angeboten, die auch für Seniorinnen und Senioren zugänglich sind.
Ein aktiver Sportverein mit über 1.600 Mitgliedern sowie weitere Kultur- und Bürgervereine laden zum Mitmachen ein und sorgen für schnellen Anschluss. Zwei Kirchengemeinden, vielfältige Freizeitangebote, ein Reiterhof und der nahegelegene Golfplatz jeweils mit sehr guter Gastronomie runden das lebendige Umfeld ab.
Die ungefähre Position der Immobilie auf Google Maps ansehen (Link auf externe Website)
