
Willkommen in Ihrem neuen Zuhause – in einer der begehrtesten Wohnlagen Bad Vilbels, wo städtischer Komfort, naturnahe Umgebung und ein ruhiges Wohnumfeld harmonisch aufeinandertreffen. Ein modernes Einfamilienhaus im klaren Bauhausstil, das mit einer Wohnfläche von ca. 182 m² sowie ca. 25 m² Nutzfläche ein großzügiges und lichtdurchflutetes Raumkonzept für die ganze Familie bietet. Klare Architektur, hochwertige Ausstattung und gleich zwei traumhafte Außenbereiche – Terrasse mit Garten sowie eine Dachterrasse mit Weitblick – machen diese Immobilie zu einem besonderen Ort.
Schon beim Betreten empfängt Sie eine helle Diele (ca. 6 m²) mit praktischem Gäste-WC. Von hier öffnet sich der großzügige Wohn- und Essbereich (ca. 31 m²) mit bodentiefen Fenstern, die das Tageslicht hereinfluten lassen und einen harmonischen Übergang nach draußen schaffen. Angrenzend liegt die offene Küche (ca. 11 m²), die zum Kochen und gemeinsamen Genießen einlädt.
Die Terrasse mit Glaspergola (ca. 7,6 m²) führt in den privaten Garten – ein idealer Platz für entspannte Sommerabende, Familienfeste oder einfach eine Auszeit im Grünen.
Das Obergeschoss bietet drei gut geschnittene, helle Zimmer (ca. 16 m², 14 m² und 8 m²), die sich flexibel als Kinderzimmer, Gästezimmer oder Homeoffice nutzen lassen. Ein modernes Tageslichtbad (ca. 6 m²) mit bodengleicher Dusche rundet die Ebene ab.
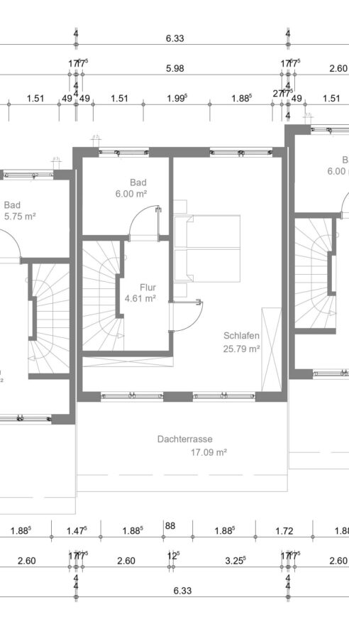
Das Dachgeschoss ist dem Elternbereich vorbehalten: Ein großzügiges Schlafzimmer (ca. 26 m²) bildet den Mittelpunkt, flankiert von einem stilvollen Tageslichtbad (ca. 6 m²). Besonders hervorzuheben ist die Dachterrasse (ca. 17 m²), die Ihnen einen exklusiven Rückzugsort mit herrlichem Weitblick bietet – ob zum Sonnenaufgang mit dem ersten Kaffee oder zum Sonnenuntergang bei einem Glas Wein.
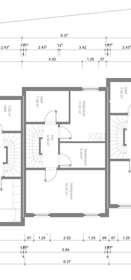
Das Untergeschoss erweitert die Wohnmöglichkeiten um einen Hobbyraum (ca. 19,5 m²) und einen praktischen Flur, die zusammen als zusätzliche Wohnfläche angerechnet werden (ca. 24 m²). Ergänzt wird die Ebene durch nützliche Funktionsräume: einen Abstellraum welcher mit einer Sauna und Dusche ausgestattet ist (ca. 6 m²), einen Kellerraum mit WC und Waschbecken (ca. 11 m²) und einen Hausanschlussraum (ca. 6 m²). Hier entstehen vielfältige Nutzungsmöglichkeiten – von Fitness- und Wellnessbereich bis hin zu kreativem Arbeiten oder Gästezimmer.
- Wohnfläche ca. 182 m² + Nutzfläche ca. 25 m²
- Wärmedämmverbundsystem (KfW 50 Standard)
- "Weißer Wanne" im Keller
- Fußbodenheizung in allen Wohnräumen
- Hochwertiger Parkettboden und moderne Fliesen
- Luft-Wärmepumpe + Photovoltaikanlage (2024)
- Sauna im Untergeschoss
- Bäder mit Walk-In Duschen und hochwertigen Armaturen
- Große Dachterrasse mit Weitblick
- Elektrische Rollläden in allen Etagen
- Gartenhütte
- Glaspergola im Garten
- Energieeffizienzklasse A
Maklervertrag, Widerrufsrecht und Auszug aus den allgemeinen Geschäftsbedingungen für Kaufinteressenten:
Die Firma Riedberg Immobilien eK unterstützt und berät in dieser Verkaufssache den Eigentümer
exklusiv (qualifizierter Alleinauftrag). Sämtliche Anfragen, Besichtigungen und Verhandlungen zur angebotenen Immobilie laufen auf Wunsch der Verkäuferseite nur über uns. Unsere Vergütung erfolgt durch den Eigentümer, weswegen die Immobilie Provisionsfrei ist für den Käufer.
Alle Angaben zur Immobilie stammen von der Verkäuferseite bzw. deren Baupartnern, wie Bauträger, Architekten, Handwerkern etc. und sind von uns nach bestem Wissen und Gewissen übernommen. Eine Haftung für solche Informationen erfolgt durch uns nicht. Der Käufer soll daher bitte alle für ihn wichtigen Punkte selbst prüfen bzw. uns einen gesonderten, ausdrücklichen Auftrag dazu erteilen und ggf. in den allein maßgeblichen Kaufvertrag mit dem Verkäufer aufnehmen lassen. Für eigene Fehler haften wir nur bei Vorsatz oder grober Fahrlässigkeit, soweit gesetzlich zulässig.
Alle unsere Angebote und Informationen sind unser "Geschäftskapital" und folglich ausschließlich für Sie als unseren Auftraggeber persönlich bestimmt und müssen vertraulich behandelt werden. Eine Weitergabe, insbesondere unserer Exposes mit der Adresse an Dritte, auch beratende Personen, ist nur mit unserer schriftlichen Zustimmung gestattet. Die unbefugte und schuldhafte Weitergabe durch Sie als Kaufinteressent verpflichtet Sie zur Zahlung der o.g. Provision, wenn der Dritte die Ihnen angebotene Vertragsabschlussgelegenheit erwirbt, d.h. diese Informationen zu unseren Lasten ausnutzt. Weitere Schadensersatzansprüche von uns an Sie entstehen im Hinblick auf die ggf. ebenso entgangene Verkäuferprovision. Das Angebot ist für uns freibleibend, der Zwischenverkauf bleibt dem Eigentümer stets vorbehalten.
Anbietender Makler:
Riedberg Immobilien eK
Inhaber: Mirjana Tannek
Rudolf Schwarz Platz 1, 60438 Frankfurt am Main
Tel. 069 - 348 68 42 40
Verkaufsberatung:
Tuba Sener
Tel. 0174 - 56 88 567
Mail: mail@riedberg.immo
www.riedberg.immo
Das Reihenmittelhaus befindet sich in einer ruhigen und gut angebundenen Wohnlage im Herzen von Bad Vilbel. Das Umfeld ist geprägt von gepflegten Wohnhäusern, kleinen Gärten und einer angenehmen, familienfreundlichen Atmosphäre. Die Straße selbst liegt in einem verkehrsberuhigten Bereich, was für ein hohes Maß an Ruhe und Sicherheit sorgt – ideal für Familien mit Kindern, Berufstätige oder Ruhesuchende.
Alle wichtigen Einrichtungen des täglichen Lebens sind bequem zu Fuß erreichbar. Einkaufsmöglichkeiten wie Supermärkte und Bäckereien, Apotheken, Arztpraxen sowie Banken befinden sich in unmittelbarer Nähe. Auch Bildungs- und Betreuungseinrichtungen – von Kindertagesstätten über Grundschulen bis hin zum Gymnasium – sind sehr gut erreichbar und machen die Lage besonders attraktiv für Familien.
Die Anbindung an den öffentlichen Nahverkehr ist hervorragend. Eine nahegelegene Bushaltestelle sowie der fußläufig erreichbare S-Bahnhof bieten eine direkte Verbindung nach Frankfurt am Main und in andere Städte der Region. Autofahrer profitieren zudem von der schnellen Erreichbarkeit der Bundesstraßen und der A661, die eine zügige Anbindung an das Rhein-Main-Gebiet gewährleisten.
Darüber hinaus überzeugt die Lage durch die Nähe zu Erholungs- und Freizeitangeboten. Der beliebte Kurpark mit seiner historischen Wasserburg und den regelmäßig stattfindenden kulturellen Veranstaltungen lädt ebenso zum Verweilen ein wie die nahe gelegenen Grünanlagen entlang der Nidda. Sportvereine, Spielplätze und Spazierwege ergänzen das Freizeitangebot vor Ort.
Insgesamt bietet diese Lage eine gelungene Verbindung aus urbaner Infrastruktur, naturnahem Wohnen und hervorragender Verkehrsanbindung – ein idealer Wohnort für alle, die das Leben im Grünen mit den Vorteilen der Nähe zur Großstadt verbinden möchten.
Die ungefähre Position der Immobilie auf Google Maps ansehen (Link auf externe Website)
