
Das moderne und mediterrane Einfamilienhaus (Anbau an einen Nachbarn, jedoch sehr gute bauliche Ausrichtung/Lösung, so dass man "nichts mitbekommt") verbindet Design, großzügige Raumwirkung und familienfreundliche Lage – ein Zuhause, das begeistert. In 2016 liebevoll von den Eigentümern mit einer Architektin geplant, sodann in massiver Bauweise mit lokalen Handwerkern errichtet und bis 2025 fortlaufend sehr gut in Schuss gehalten, bietet es ca. 377 m² Wohn- und Nutzfläche auf drei Ebenen zzgl. UG sowie ein traumhaftes Eckgrundstück von knappen 500 m². Klare, großzügige Architektur, eine offene Galerie, bodentiefe, große Fensterflächen und Annehmlichkeiten vom klassischen Panoramaholzkamin bis zum modernen Smart Home, eine sehr große einladende Dachterrasse und ein exquisit gestalteter Garten zeichnen diese Immobilie als Ihr neues Zuhause in ruhiger Wohnlage aus.
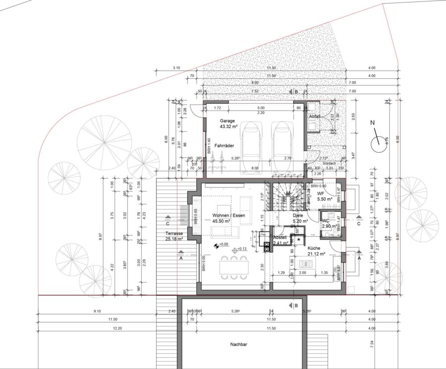
Bereits beim Betreten des Hauses gelangen Sie über den Windfang (ca. 6 m²) und die Diele (ca. 5 m²) in den großzügig geschnittenen Wohn- und Essbereich (ca. 46 m²). Sich über zwei Etagen erstreckende übergroße, bodentiefe Fensterflächen mit Blick in den Garten schaffen ein außergewöhnliches Raumgefühl von Weite und Helligkeit – ein beeindruckendes Detail, das man nur selten findet. Der Kamin bildet den gemütlichen Mittelpunkt des offenen und lichtdurchflutenden Wohnbereichs und sorgt für ein einladendes Ambiente an langen Abenden. Die angrenzende offene Küche (ca. 21 m²) mit Kochinsel und Sitzgelegenheiten für mehrere Personen lädt zum gemeinsamen Kochen und Essen ein. Hochwertige Elektrogeräte runden die zeitlos-elegante Nolte-Einbauküche ab. Vom Essbereich aus betreten Sie die sonnige Gartenterrasse (ca. 25 m², d.h. ca. 13 m² Wfl.), die nahtlos in den mediterran gestalteten Garten übergeht. Ein Gäste-WC (ca. 3 m²) mit Naturstein-Waschbecken und Urinal sowie ein praktischer Abstellraum (ca. 2 m²) komplettieren das Erdgeschoss.
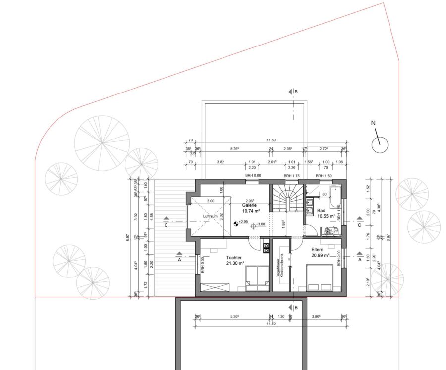
Über die elegante Treppe mit edlen Holzoptikfliesen und dezent integrierter LED-Beleuchtung gelangen Sie ins Obergeschoss. Gleich zu Beginn empfängt Sie die Galerie (ca. 20 m²) – ein offener Bereich mit Glasgeländer, der sich wie ein Balkon zum Wohnraum hin öffnet. Ob als repräsentatives Homeoffice, gemütliche Lounge oder zusätzlicher Spielbereich: die Galerie ist mehr als nur ein Durchgang – sie ist ein architektonisches Highlight, das dem Haus Charakter und Großzügigkeit verleiht. Das Elternschlafzimmer (ca. 21 m²) bietet Ruhe und Privatsphäre. Das Kinderzimmer 1 (ca. 21 m²) begeistert mit einem direkten Zugang zur großzügigen Dachterrasse über der Garage (ca. 43 m², in der Wohnfläche mit ca. 22 m² berücksichtigt). Abgerundet wird die Etage durch das helle Tageslichtbad (ca. 11 m²) mit Doppelwaschbecken, Badewanne, bodengleicher Dusche und zusätzlichem Bidet.
Das Dachgeschoss beeindruckt ebenfalls durch seine offene Gestaltung. Der große Studio-Wohnbereich (ca. 33 m²) ist dank zusätzlicher Gauben lichtdurchflutet und bietet unzählige Nutzungsmöglichkeiten. Ergänzt wird die oberste Ebene durch das zweite Kinderzimmer (ca. 16 m²) und ein edles Duschbad (ca. 7 m²).
Das Haus ist vollunterkellert und bietet dadurch viel zusätzliche Fläche. Ein sehr großer Hobbyraum (ca. 43 m²) wartet auf eine kreative Nutzung – ob als Fitnessbereich, Heimkino oder Spielraum. Ergänzt wird die Ebene durch einen Hauswirtschaftsraum (ca. 24 m²) mit Wasch- und Trockenmöglichkeiten sowie einen Haustechnikraum (ca. 9 m²). Der Flur misst ca. 3 m².
Der Garten ist mediterran gestaltet: Naturstein, Kiesflächen und pflegeleichte Bepflanzung schaffen ein stilvolles Ambiente. Mit rund 350 m² Grünfläche bietet er viel Platz für Erholung und Spiel. Eine 6.000 Liter Regenwasserzisterne unterstützt die Gartenbewässerung und die WC-Spülungen. Für Ihre Fahrzeuge/Räder steht eine ca., 43 m² große Doppelgarage zur Verfügung, weitere 2 Autos können auf dem eigenen Grundstück parken.
- An den Nachbarn angebautes, villenartiges Architekten-Einfamilienhaus mit ca. 1.426 m³ Bauvolumen, d.h. keine klassische Doppelhaushälfte, der Bau ist anders ausgerichtet, man merkt nicht, dass man einen "angebauten" Nachbarn hat; offene, großzügige und sehr helle Raumgestaltung, z.B. Wohnen / Essen / Küche mit ca. 67 m², Hobbyraum mit ca. 43 m², Dachterrasse mit ca. 43 m² usw.
- Moderne Massivbauweise (Ziegel mit integriertem Wärmeschutz) mit lokalen Handwerkern in 2016 errichtet und zuletzt 2025 renoviert und die Außenanlagen fertig gestellt, Satteldach, teilweise Natursteinfassade
- ca. 373 m² Wohn-/Nutzfläche auf 4 Ebenen inkl. Vollunterkellerung, ca. 249 m² Wfl. und ca. 124 m² weitere Nfl. inkl. der Doppelgarage
- ca. 498 m² traumhaftes Eckgrundstück in ruhiger, familienfreundlicher Lage von Erzhausen
- Neuwertiger Gesamtzustand, hochwertige Materialien
- Hohe Beton-Decken mit LED-Beleuchtung (Einbauspots)
- Hochwertige Fliesen in allen Räumen (große Formate 80 x 80 cm, Feinsteinzeug)
- Malerflies
- Betontreppe mit hochwertiger Holzoptikfliese
- KNX-Bus von Gira mit Hausverkabelung Cat 6/7, Smart Home zur Steuerung von Heizung, Beleuchtung, Sonnenschutz etc., programmierbare Touchpads, Steuerung auch vom Smartphone
- Glasfaseranschluss mit bis zu 1 GB
- SAT-TV
- Moderne Einbauküche von Nolte mit Markenelektrogeräten (ca. 21 m²) mit Kochinsel, Gasherd und viel Stauraum, Side by Side Kühlschrank von Samsung mit Icemaker
- 2 Luxusbäder sowie luxuriöses Gäste-WC
- Fußbodenheizung in allen Etagen, Energieträger Erdgas, Energieklasse B, in Kombination mit Solarthermie für Warmwasser
- Panoramaholzkamin (doppelzügig)
- KS-Fenster von Schüco mit 3-fach Verglasung und elektrische Jalousien, abschließbar und teilweise Fliegengitter
- ca. 350 m² Grünfläche / Garten zur Erholung und zum Spielen
- Große und sonnige Gartenterrasse im EG sowie Dachterrasse über der Garage (Vorbereitung Whirlpool)
- Ca. 6.000 Liter Regenwasserzisterne für Gartenbewässerung & WC-Spülung
- Doppelgarage mit ca. 43 m² Nfl. für 2 PKW, Fahrräder und Motorrad, Starkstromanschluss / Vorbereitung Wallbox für E-Autos
- Vorbereitung für ELW im DG d.h. Küchen- und Waschmaschinenanschlüsse/-abflüsse
- Vorbereitung Sauna im Keller (Starkstromanschluss)
- Bei Interesse kann die geschmackvolle Einrichtung erworben werden.
Maklervertrag, Widerrufsrecht und Auszug aus den allgemeinen Geschäftsbedingungen für Kaufinteressenten:
Die Firma Riedberg Immobilien eK unterstützt und berät in dieser Verkaufssache den Eigentümer exklusiv (qualifizierter Alleinauftrag). Sämtliche Anfragen, Besichtigungen und Verhandlungen zur angebotenen Immobilie laufen auf Wunsch der Verkäuferseite zunächst über uns. Unsere Vergütung erfolgt in Höhe von 2,95% inkl. MwSt. aus dem Kaufpreis durch die Käuferseite an uns, fällig mit rechtswirksamen, notariellen Kaufvertragsabschluss. Die Verkäuferseite zahlt die gleiche Maklercourtage an uns. Mithin beträgt die Gesamtprovision 5,9% inkl. MwSt. und wird 50:50 zwischen Käufer und Verkäufer aufgeteilt (jeweils separate Maklerverträge). Bitte beachten Sie Ihr gesetzlich vorgesehenes Widerrufsrecht zum Abschluss eines Maklervertrags mit uns. Entscheiden Sie sich gegen den Kauf der angebotenen Immobilie, fallen selbstverständlich keine Maklerkosten für Sie an (Erfolgsabhängigkeit unserer Tätigkeit). Da wir für beide Parteien als Makler tätig sind und von diesen honoriert werden, sind wir bei Vermittlungsleistungen zur Unparteilichkeit verpflichtet. Wir agieren als neutraler Vermittler.
Alle Angaben zur Immobilie stammen von der Verkäuferseite bzw. deren Baupartnern, wie Bauträger, Architekten, Handwerkern etc. und sind von uns nach bestem Wissen und Gewissen übernommen. Eine Haftung für solche Informationen erfolgt durch uns nicht. Der Käufer soll daher bitte alle für ihn wichtigen Punkte selbst prüfen bzw. uns einen gesonderten, ausdrücklichen Auftrag dazu erteilen und ggf. in den allein maßgeblichen Kaufvertrag mit dem Verkäufer aufnehmen lassen. Für eigene Fehler haften wir nur bei Vorsatz oder grober Fahrlässigkeit, soweit gesetzlich zulässig.
Alle unsere Angebote und Informationen sind unser "Geschäftskapital" und folglich ausschließlich für Sie als unseren Auftraggeber persönlich bestimmt und müssen vertraulich behandelt werden. Eine Weitergabe, insbesondere unserer Exposés mit der Adresse an Dritte, auch beratende Personen, ist nur mit unserer schriftlichen Zustimmung gestattet. Die unbefugte und schuldhafte Weitergabe durch Sie als Kaufinteressent verpflichtet Sie zur Zahlung der o.g. Provision, wenn der Dritte die Ihnen angebotene Vertragsabschlussgelegenheit erwirbt, d.h. diese Informationen zu unseren Lasten ausnutzt. Weiter können Schadensersatzansprüche von uns an Sie entstehen im Hinblick auf die ggf. ebenso entgangene Verkäuferprovision. Das Angebot ist für uns freibleibend, der Zwischenverkauf bleibt dem Eigentümer stets vorbehalten.
Anbietender Makler:
Riedberg Immobilien eK
Inhaber: Mirjana Tannek
Rudolf Schwarz Platz 1, 60438 Frankfurt am Main
Tel. 069 - 348 68 42 40
Verkaufsberatung:
Tuba Sener
0174 - 56 88 567, sener@riedberg.immo
Anton T. Hartl
0172 - 855 77 05, hartl@riedberg.immo
Eingetragen im Handelsregister beim AG Frankfurt unter Nr. HR A 48 505
Gewerbeaufsicht: Ordnungsamt der Stadt Frankfurt am Main
Zulassung nach § 34c GewO: Landratsamt Dachau bzw. Kreisverwaltung Darmstadt-Dieburg
Die Immobilie befindet sich in ruhiger und familienfreundlicher Wohnlage von Erzhausen, einer attraktiven Gemeinde zwischen Darmstadt und Frankfurt am Main. Eingebettet in ein gewachsenes Wohngebiet mit wenig Durchgangsverkehr genießen Sie hier ein hohes Maß an Ruhe und Lebensqualität – verbunden mit einer hervorragenden Anbindung an das gesamte Rhein-Main-Gebiet.
Erzhausen liegt verkehrsgünstig. Der örtliche Bahnhof ist in wenigen Minuten erreichbar und bietet mit der S-Bahn-Linie 3 eine direkte Verbindung nach Darmstadt (ca. 10 Minuten) und Frankfurt (ca. 25 Minuten). Ergänzt wird das Angebot durch regionale Buslinien. Mit dem Auto erreichen Sie die Autobahnen A5, A661 und A67 in kürzester Zeit – so sind Frankfurt, Darmstadt und der internationale Flughafen Frankfurt in ca. 20 Minuten erreichbar. Auch der Privat-Flughafen in Egelsbach ist unweit entfernt.
Für den täglichen Bedarf stehen in Erzhausen mehrere Supermärkte, Bäckereien und Fachgeschäfte zur Verfügung. Darüber hinaus bietet der nahegelegene Wochenmarkt frische, regionale Produkte. Umfangreichere Einkaufsmöglichkeiten finden sich im Loop5 Shopping-Center in Weiterstadt oder in der Darmstädter Innenstadt. Ärzte, Apotheken und Banken sind ebenfalls direkt im Ort vorhanden.
Familien profitieren von einer sehr guten Bildungs- und Betreuungsinfrastruktur. Im Ort gibt es mehrere Kindertagesstätten sowie eine Grundschule. Weiterführende Schulen befinden sich in den benachbarten Städten Darmstadt und Langen und sind bequem mit Bus oder Bahn erreichbar. Damit bietet Erzhausen kurze Wege für Kinder aller Altersgruppen.
Vielfältige Freizeitmöglichkeiten sorgen für hohe Lebensqualität. Zahlreiche Spielplätze liegen in unmittelbarer Umgebung, ebenso wie Sportvereine mit Angeboten von Fußball über Turnen bis Tennis. Umgeben von Feldern und Wäldern lädt die Umgebung zu Spaziergängen, Radtouren und Joggingrunden ein. Auch kulturelle Veranstaltungen im Bürgerhaus, die Nähe zum Darmstädter Theater sowie Schwimmbäder in Langen und Darmstadt erweitern das Freizeitangebot.
Erzhausen bietet die perfekte Kombination aus naturnahem Wohnen und zentraler Anbindung. Die ruhige, familienfreundliche Umgebung, kurze Wege zu Einkauf und Schulen sowie die schnelle Erreichbarkeit von Darmstadt, Frankfurt und dem Flughafen machen den Standort besonders attraktiv – ein idealer Lebensmittelpunkt für Familien und Berufspendler gleichermaßen.
Die ungefähre Position der Immobilie auf Google Maps ansehen (Link auf externe Website)
